Izdaje se magacinski prostor – Zemu, naselje Meandri, ulica Zadrugarska, ukupne površine 289 m², iz dva dela, prilaz za sleper, trofazna struja, visina plavona 3.2m,
Izdaje se magacinski prostor – Zemun
Lokacija: Beograd
Deo grada: Zemun
Mikrolokacija: Meandri
Ulica: Zadrugarska
Kvadratura: 289 m2
Sprat: PR od: 1
Grejanje: nema grejanje
Tip objekta: stara gradnja
Opis objekta: izvorno stanje
Namestenost: prazan
Nacin placanja: mesecno
Dodatno:
odmah useljiv, depozit, parking
Dodatni opis:
Izdaje se magacinski prostor – Zemun (Meandri, Zadrugarska ulica)
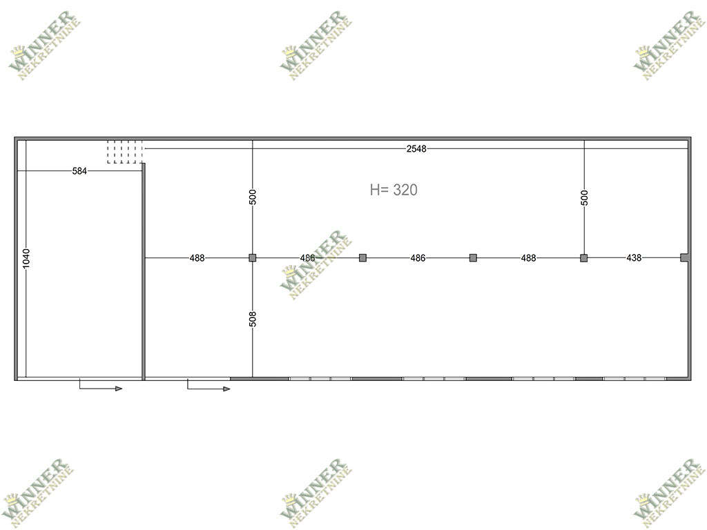
Izdaje se funkcionalan magacinski prostor u Zemunu, naselje Meandri, ulica Zadrugarska, ukupne površine 289 m².
Prostor je podeljen u dve celine:
- manji deo: cca 50 m²
- veći deo: cca 240 m²
Karakteristike prostora:
- visina plafona: 20 m
- širina objekta: 10 m
- čvrsta betonska konstrukcija
- metalni prozori
- velika klizna vrata (5 m dužine) – pogodno za utovar/istovar
Pristup i logistika:
- ispred magacina se nalazi proširen prostor za manipulaciju
- omogućen prilaz za šlepere i teretna vozila
Dodatna pogodnost:
- iznad magacina se nalazi poslovni prostor površine 289 m², pogodan za kancelarije, administraciju ili prateće delatnosti
Namena prostora:
- skladištenje robe
- distributivni centar / logistika
- e-commerce (online prodaja i pakovanje)
- manja proizvodnja ili radionica
- veleprodaja
Uslovi zakupa:
- Depozit: jedna mesečna kirija
- Dugoročan zakup
- Prostor je odmah useljiv
Odlična lokacija u Zemunu, sa dobrom povezanošću ka glavnim saobraćajnicama.
Dodatna pogodnost:
• iznad magacina se nalazi poslovni prostor površine 289 m², pogodan za kancelarije, administraciju ili prateće delatnosti, što omogućava kompletno organizovanje poslovanja na jednoj lokaciji.
mozete pogledati kancelariski prostor klikom na ovaj link https://winnernekretnine.com/Nekretnina/poslovni-prostor-289-m%c2%b2-za-firme-zemun-meandri/
Kontakt osoba: Željko
Kontakt telefon: 0695001125
Agencija upisana u registar posrednika pod brojem 508.
Agencijsku proviziju placa zakupac u iznosu od 50% od mesecne cene izdavanja.
Naselje Meandri
u Zemunu je dobra lokacija za firme jer pruža mirno i funkcionalno okruženje za rad, van gradske gužve, a opet dovoljno blizu glavnih saobraćajnica i centra grada.
Lokacija je dobro povezana sa ostatkom Beograda, uključujući Novi Beograd i autoput, a u blizini se nalaze i linije gradskog prevoza, što zaposlenima olakšava dolazak na posao.
Velika prednost ovog kraja je što nema problema sa parkingom, što je retkost u gradu i značajno olakšava svakodnevno poslovanje, kako zaposlenima tako i klijentima.
Okruženje je mirno, bez velike buke i gužve, što ga čini pogodnim za delatnosti koje zahtevaju koncentraciju i organizovan rad, poput IT firmi, administracije, call centara i raznih agencija.
U okolini se nalaze i osnovni sadržaji (prodavnice, kafići i slično), pa je lokacija praktična za svakodnevne potrebe zaposlenih.
Property Features
- asfalt
- odmah useljiv
- parking
- prizemlje
- stara gradnja
- useljivo



























